Makléř: Albl Václav
Telefon: 800 100 ...
E-mail: info@mm ...
Zobrazit celý kontaktTelefon: 800 100 446
E-mail: info@mmreality.cz
Nemovitost nabízí
M&M reality holding a.s.
Krakovská 1675/2, 110 00 Praha 1
Zobrazit kontakt na RK800 100 446
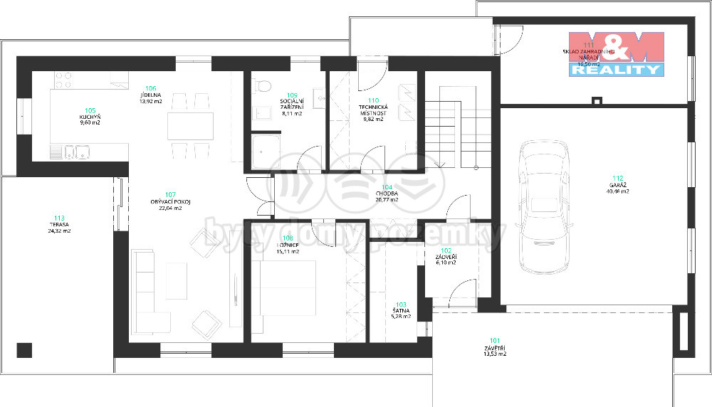
Nabízíme k prodeji hrubou stavbu rodinného domu s terasou a dvoj garáží, vč. stavebního povolení, en. štítku, měření radonu a uhrazeného vynětí ze zemědělského půdního fondu.7 Jedná se o hrubou stavbu s monolitickými základy ve kterých je dokončena ležatá kanalizace, která je dále napojena na veřejnou kanalizaci (splašková, dešťová). Betonové stropy. Kolem domu je uložen zemnící pásek s vývody na hromosvody. Obvodové zdivo je z 500 mm cihel. Fotografie jsou ilustrativní dle stavby č. 54 která je již dokončený. Stavbu lze dokončit na klíč od cca 3 mil. korun. Hrubá stavba se nachází v nově vznikající zástavbě na okraji Klatov zaručující klidné prostředí, kousek od Šumavské zeleně. Klatovy se nachází 40 km od Plzně. Město nabízí plnou občanskou vybavenost, nachází se zde několik středních a základních škol, školek, nová moderní nemocnice a divadlo. Pokud Vás nabídka zaujala, neváhejte kontaktovat našeho makléře
Prodej prostorného rodinného domu u parku v Klatovech
Hledáte místo, kde se budete opravdu cítit doma? Kde ráno otevřete okno do zeleně, uslyšíte ticho parku a přitom máte centrum města jen pár minut…
Prodej rodinného domu, 233 m2, Klatovy, ul. Nedbalova
Nabízíme k prodeji hrubou stavbu rodinného domu s terasou a dvoj garáží, vč. stavebního povolení, en. štítku, měření radonu a uhrazeného vynětí ze…