Makléř: SAND RK s.r.o.
Telefon: 840 111 ...
E-mail: info@sa ...
Zobrazit celý kontaktTelefon: 840 111 113, 602 408 137
E-mail: info@sand.cz
Nemovitost nabízí
SAND RK s.r.o.
Husova 39, 344 01 Domažlice
Zobrazit kontakt na RK602 408 137
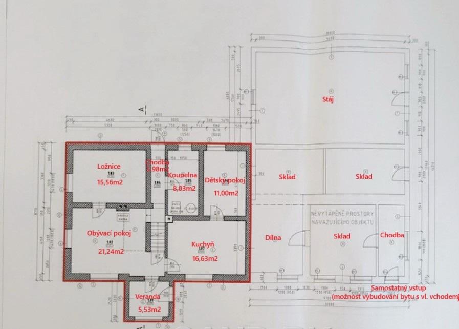
Nabízíme RD 3+1 na fantastickém místě (bez přímého souseda, přímý výhled na Šumavu, polosamota). Prodávané nemovitosti tvoří obytný prostor, dále dílna se sklady a hospodářská budova. Vše se nachází na pozemku o celkové ploše 856m2. Další okolní pozemky jsou ve vlastnictví Městysu Všeruby a Státního pozemkového úřadu - možný odkup či pronájem (tím možno docílit celkové výměry pozemků 2688m2). Dům prošel v posledních letech rekonstrukcí : střechy (velké plochy), komplet interiéry (vše okopané až na cihlu), veškeré rozvody, topení, nové betonové podlahy, okna, dveře, omítky, tepelné čerpadlo, podhledy, koupelna, drenáže (zbývá dokončit fasáda a v případě potřeby zbudovat místnosti v podkroví). Dům společně s hospodářskou budovou má zastavěnou plochu 256m2 a (obytná cca. 84m2). Přízemí domu tvoří : veranda (5,53m2), chodba (5,98m2), obývací pokoj (21,24m2), kuchyň (16,63m2), ložnice (15,56m2), dětský pokoj (11m2), koupelna s WC (8,03m2). Na obytnou část navazuje dílna a sklady s vlastním vchodem (možnost vybudovat garáž, popřípadě další byt). V podkroví se nachází velký půdní prostor k vestavbě (zhotoveno zateplení mezi podlahou na půdě a stropem v přízemí, z poloviny hotová nová podlaha + další OSB desky k dokončení). V suterénu se nachází 2x skladová místnost. Okolo domu se rozprostírá zatravněný pozemek s naprostou mírou klidu a soukromí. Dům je napojen na el. energii 230/400V, voda je zavedena z vodovodu, odpady svedeny do septiku a vytápění zajišťuje ústřední topení s tepelným čerpadlem (a také krbová kamna v obývacím pokoji). Výhodné je, především pro pracující v Německu, že se dům nachází v bezprostřední blízkosti hraničního přechodu Všeruby Eschlkam, vzdáleného jen 4km (to znamená, že je zajištěná rychlá dostupnost německých měst Furth im Wald 15min. a Cham 30min.). Kdyně 10km, Nýrsko 12km, Domažlice 19km, Klatovy 28km. Obec Pomezí se nachází v krásné přírodě (lesy, pastviny) v přímo u šumavského pohoří (přímý výhled na vrchol Hoher Bogen). K tomu, aby mohl člověk docenit krásu tohoto místa a jedinečný výhled, je nutná osobní návštěva (výhled do údolí a na Šumavu a skiareál Hoher Bogen). Krásné bydlení (či rekreace) na celý život v čisté přírodě, klidu a soukromí. Opravdu jedinečná poloha, kterou není možné zachytit fotografií či videm nutný osobní zážitek. Místo, které jen tak nekoupíte fantazie ! <a href="https://www.eurobydleni.cz/domy/rodinny-dum/prerov/obec-horni-mostenice/prodej/"><strong>Prodej rodinného domu Horní Moštěnice</strong></a>
Zrekonstr. RD v CHKO Český les
Dům po zásadní rekonstrukci za cenu pozemku či ruiny k celkové adaptaci! Nabízíme část. podsklepený rodinný dům (chalupu) se stodolou v krásné…
Prodej, Rodinný dům, Velký Malahov
Nabízíme k prodeji zemědělskou usedlost v malebné vesnici Jivjany, část obce Velký Malahov okr. Domažlice, s pozemkem o celkové rozloze 4943 m2. Z…
Prodej rodinného domu Všeruby na Eurobydleni.cz