Makléř: Ivo Čech
Telefon: 730 684 ...
E-mail: ivo.cec ...
Zobrazit celý kontaktTelefon: 730 684 252, 730 684 252
E-mail: ivo.cech@qara.cz
Nemovitost nabízí
QARA s.r.o.
Šafaříkova 201/17, 120 00 Praha 2
Zobrazit kontakt na RK
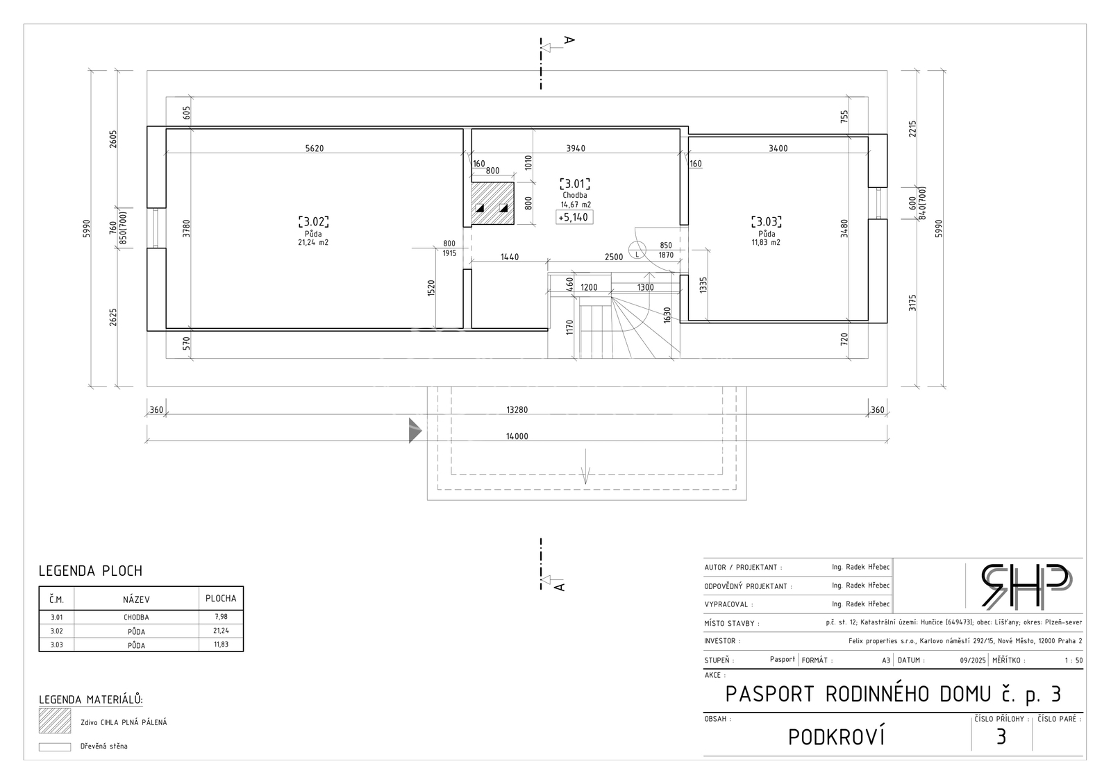
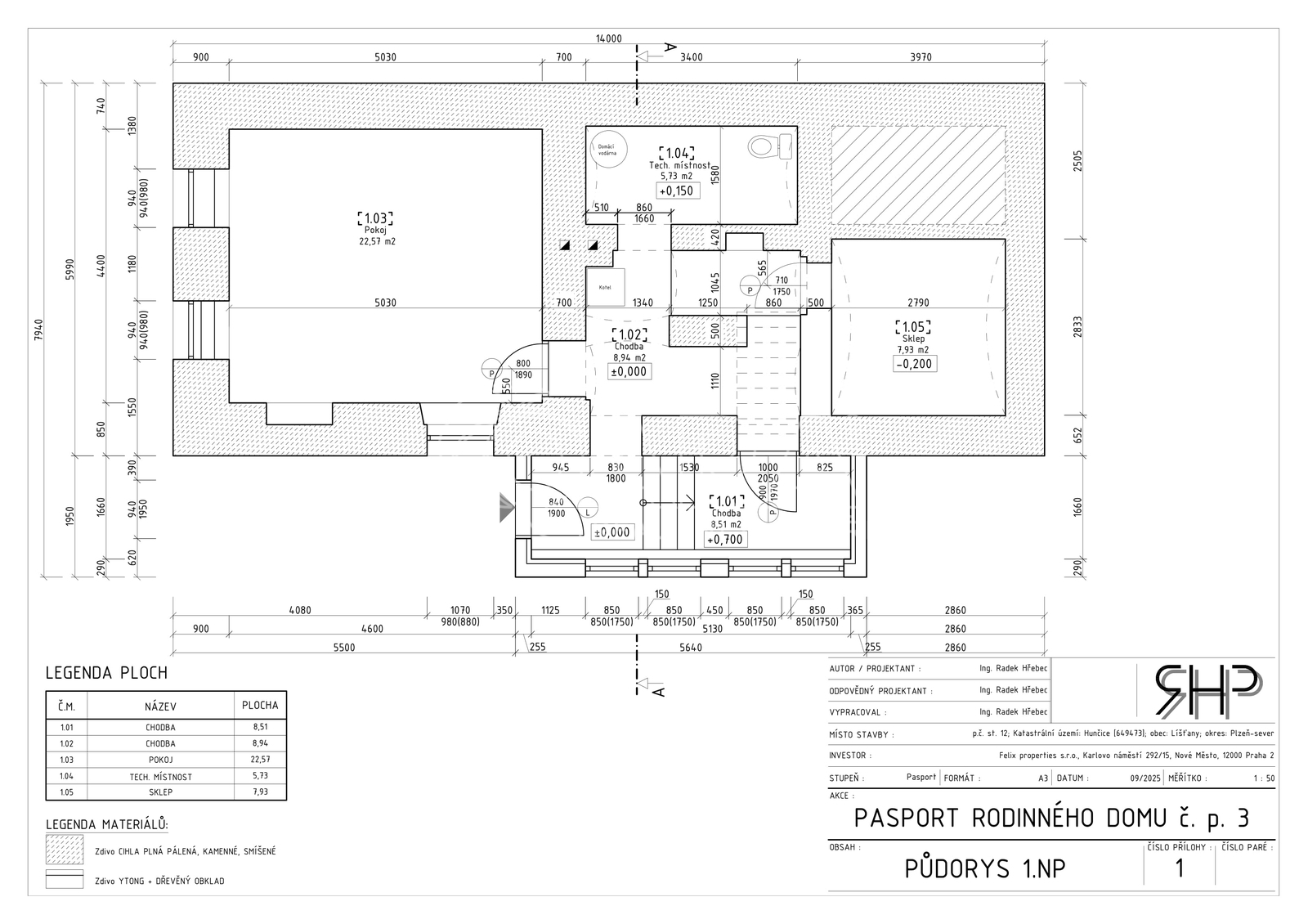
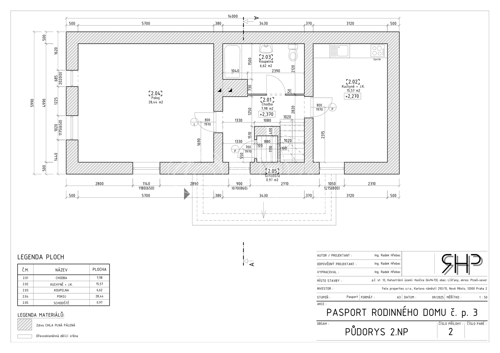
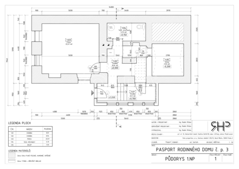
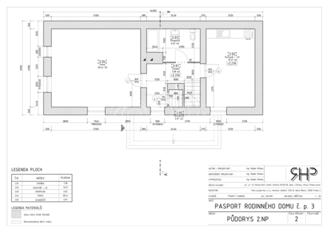
K prodeji nabízíme samostatně stojící rodinný dům v obci Hunčice, které se nachází jen 11 minut jízdy autem od Plzně. Nemovitost je vhodná pro menší rodinu, která ocení možnost využít stodolu a dílny, které se nacházejí na pozemku a zejména pak zahradu, kde se dá vybudovat altánek, krb, trampolína, bazén... Nemovitost je zcela jistě před částečnou rekonstukcí, před několika lety byla dělána nová střešní krytina a měněny okna za plastová. - parkování: na pozemku - voda: ze studny - odpad: jímka - teplá voda: Bojler Dražice OKC 125 z roku 2023 - topení: kotel Atmos C15S z roku 2022 - okna: plastová s dvojskly - sítě: přípojení T-Mobile - střecha: nová krytina; pálená taška - dispozice: 4+1 (1 pokoj v přízemí, 1 ve 2.NP, 2 v podkroví); všude jsou nížší stropy Orientační velikost místností o ostatních prostor: 1.NP - přízemí: Vstupní předsíň: 8,45 m2 Pokoj: 21,98 m2 Chodba: 8,63 m2 Místnost s bojlerem: 5,4 m2 Sklep: 8,29 m2 2NP - 1.patro: Obývací pokoj: 28,35 m2 Kuchyně: 15,5 m2 Koupelna: 6,65 m2 Chodba: 6,21 m2 Schody 1.NP-2.NP: 2,02 m2 Schody 2.NP-3.NP: 2,46 m2 3.NP - 2.patro: Ložnice: 17,04 m2 Pokoj: 10,2 m2 Chodba:8,59 m2 -------------------------------- Celkem: 136,08 m2 + sklep 8,29 m2 + místnost s bojlerem: 5,4 m2 + Stodola: 37,17 m2 + Dílna1: 25,06 m2 + Dílna2: 34,6 m2 + Sklad: 7,21 m2 + Stodola půda: 64,75 m2 Nemovitost je možné financovat hypotečním úvěrem. Na nemovitosti není žádná zástava. Pro více informací mi neváhejte napsat nebo zavolat.
Prodej, Rodinný dům, Líšťany
Máte rádi přírodu? Nevyhovuje vám život ve městě bez většího množství zeleně a navíc nepožadujete příliš velké dispozice k bydlení? Tak jste zde…
Prodej, Rodinný dům, Líšťany
Hledáte klid přírody v dojezdové vzdálenosti města Plzně? Pak Vás jistě bude zajímat tento rodinný dům o třech patrech v obci Košetice - Líšťany,…