Makléř: Mgr. Romana Trešlová
Telefon: 604 848 ...
E-mail: romana. ...
Zobrazit celý kontaktTelefon: 604 848 564, 604 848 564
E-mail: romana.treslova@qara.cz
Nemovitost nabízí
QARA s.r.o.
Šafaříkova 201/17, 120 00 Praha 2
Zobrazit kontakt na RK
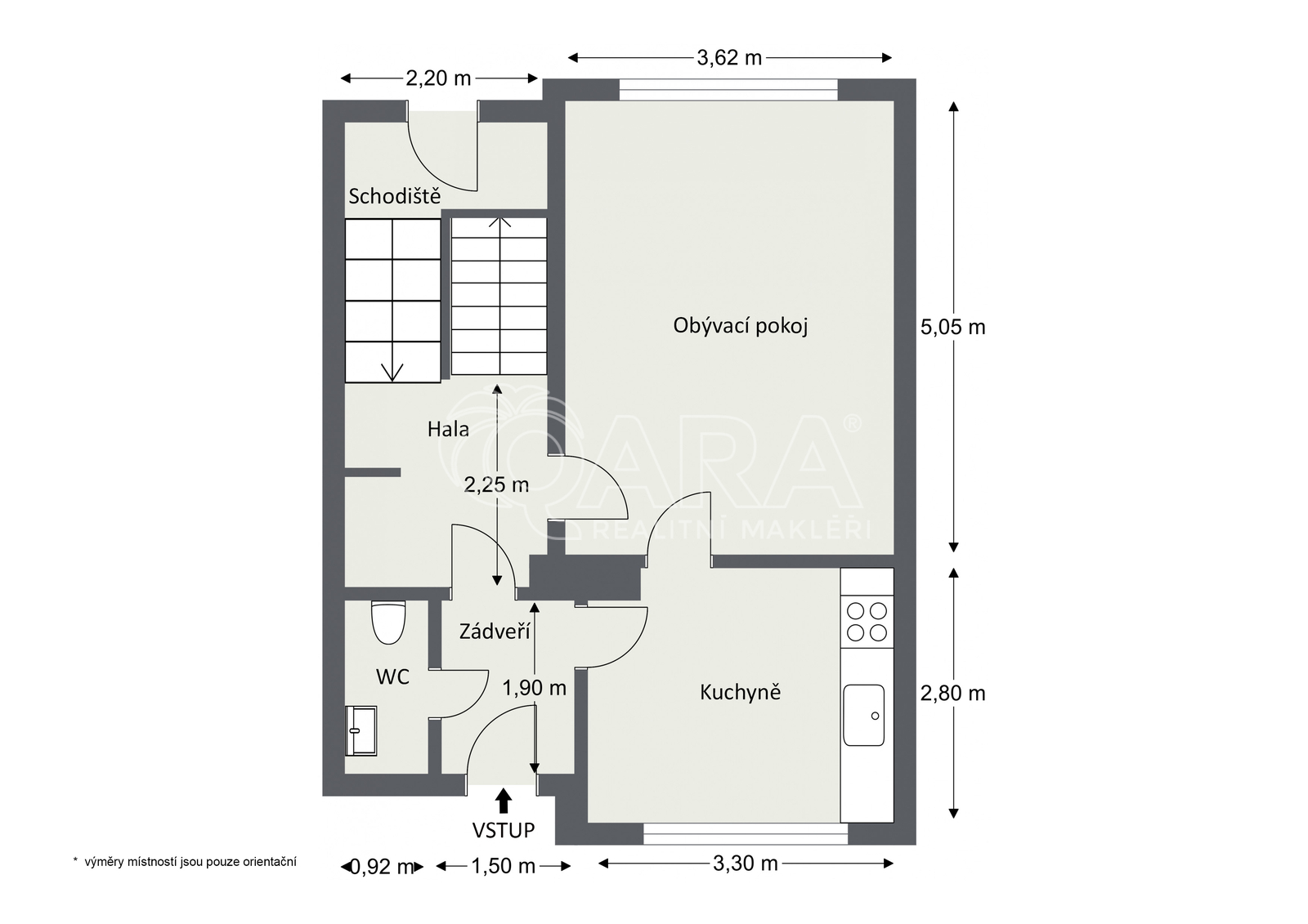
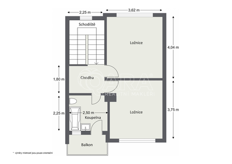
Hledáte klidné a cenově dostupné bydlení? Pak je tohle příležitost pro vás. Ve vesnici Březín u Nečtin je na prodej řadový rodinný dům. Zahradu ve vzdálenosti 50m od domu k němu dostanete zdarma. Dům je dispozičně řešený jako 3+1. Na každém patře jsou 2 obytné místnosti, dole je WC s umyvadlem, v patře koupelna s vanou a WC. Součástí domu je balkon a nadstandardně velké a praktické sklepní prostory. Dům má přední i zadní vchod a má vlastní biologickou čističku odpadních vod zprovozněnou před 3 lety. Do domu je zavedený obecní vodovod. Dům potřebuje celkovou modernizaci včetně všech sítí a rozvodů. Přes dvůr najdete zahradu o rozloze asi 250 m2, která byla původně pronajata od obecního úřadu. Nájemní smlouvu můžete opět obnovit. Pokud budete chtít zahradu do vlastnictví, nebude vás to stát ani korunu navíc. Dostanete ji zdarma jako bonus, stávající majitelé ji pro vás od obecního úřadu odkoupí. Dům najdete v Březíně v okrese Plzeň-sever, která spadá pod obec Nečtiny (2,5 km). Nečtiny nabízí dobrou občanskou vybavenost - obecní úřad, základní a mateřskou školu, zdravotní středisko, prodejnu potravin a restauraci. Nejbližší města jsou Manětín (9 km) a Plasy (26 km), krajské město Plzeň je vzdáleno 40 km. Okolí je charakteristické krásnou přírodou, která přitahuje mnoho výletníků a turistů. Pokud milujete venkov a hledáte klidné a cenově dostupné bydlení, je tohle příležitost pro vás. Zavolejte mi a zajedeme se spolu do Březína podívat.
Prodej rodinného domu, 335 m2, Nečtiny-Březín
Nabízím k prodeji rodinný dům v obci Březín u Nečtin, která vyniká úžasným klidem venkova a krásnou přírodou. Dům je udržovaný v dobrém stavu,…
Rodinný dům, Hrad Nečtiny
Představujeme vám exkluzivní nabídku prodeje rodinného domu v malebné obci Nečtiny, nacházející se ve středověkých kulisách nedaleko historického…