Makléř: Consulting, a.s. Broker
Telefon: 800 100 ...
E-mail: okreali ...
Zobrazit celý kontaktTelefon: 800 100 164, 800 100 164
E-mail: okrealitnisluzby@bcas.cz
Nemovitost nabízí
Realityspolu
Avenir Business Park Radlická 751/113E, 158 00 Praha 5
Zobrazit kontakt na RK800 100 164
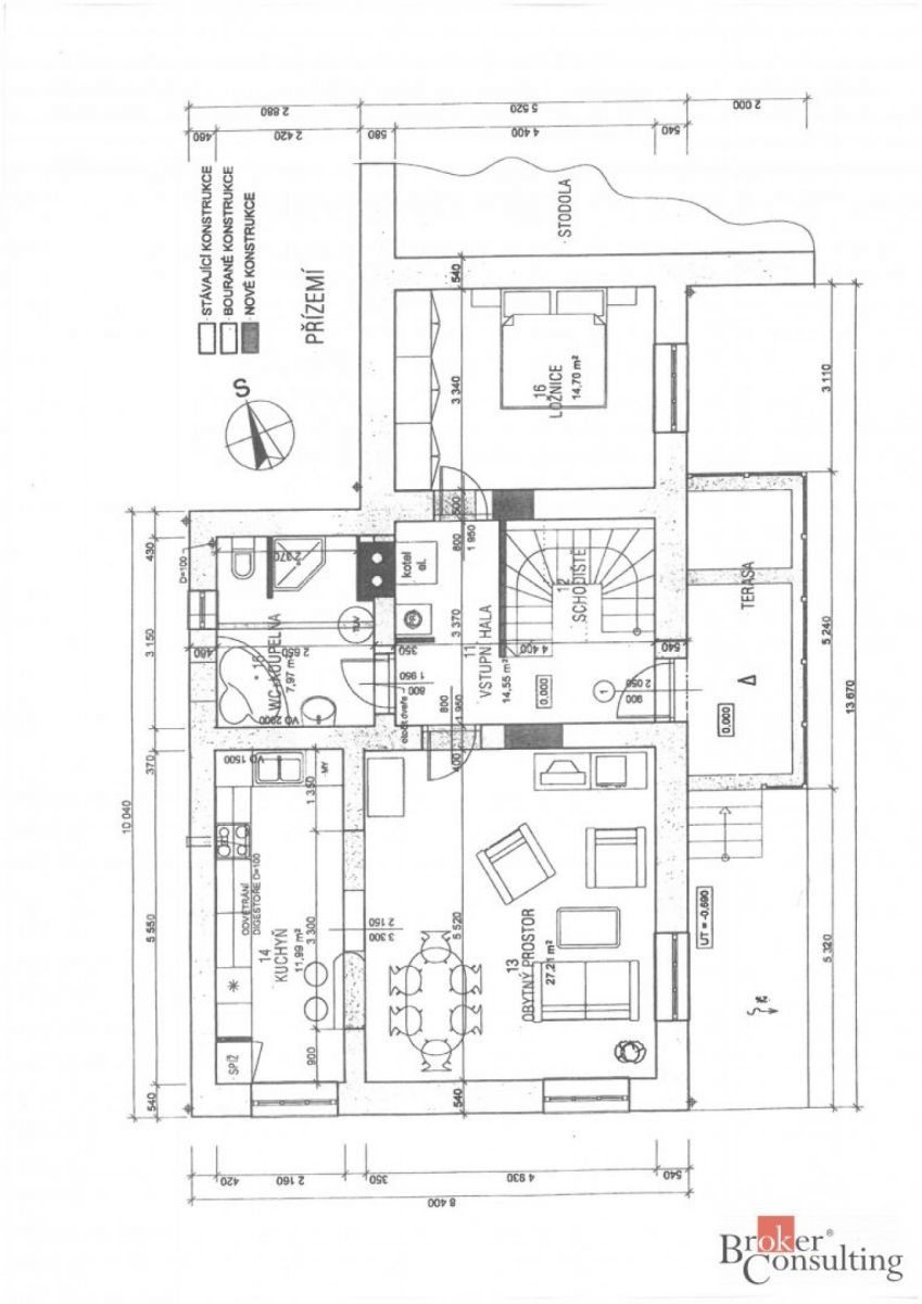
Nabízíme na prodej rodinný dům se stodolou a zahradou, Nová Ves u Konstantinových Lázní. Rodinný dům dispozice 2+1 stojí na vlastním pozemku o celkové ploše 862 m2. Dispozice: 1.NP - prostorná obytná kuchyně, obývací pokoj, ložnice, koupelna s vanou a WC, prostorná předsíň se zádveřím. Sklep - celý dům je podsklepen např. pro skladování ovoce, úložné prostory. Ve sklepních prostorách je umístěň kotel na tuhá paliva a elektrokotel s možností využivat obě varianty pro vytápení celého domu. Půda - půdní prostor je připraven pro další rekonstrukci a výbudování dalších pokojů, do půdního prostoru je přivedena elektroinstalace a další rozvody pro realizaci půdní vestavby. Dům prošel před 10 lety rekonstrukcí v 1.NP, které je aktuálně využíváno k bydlení. Plastová okna, nové rozvody vody, odpady, eletroinstalace, nová koupelna atd. Ohřev vody zajišťuje elektrický bojler. Inženýrské sítě - elektřina, městský vodovod, na pozemku je vlastní studna, odpad je řešen septikem. K domu nálěží horpodářské stavení/ stodola, aktuálně využívaná jako garáž, dílna, skladovací prostory. Je zde možnost další přestavby na obytné prostory. Energetická náročnost budovy G, PENB se připravuje. Na pozemku stojí dřevěný zahradní domek, do kterého je přivedena voda, elektřina a odpad. Domek byl majiteli využíván jako letní prodejní kiosek. Obec Nová Ves / Konstantinovy Lázně je velmi klidnou lokalitou jak na trvalé bydlení tak pro rekreaci. Před domem najdete zastávku autobusu, v obci je hospoda, Vzdálenost do Konstantinových Lázní 2 km, do Bezdružic 2,5 km. Tam najdete veškerou občanskou vybavenost. Dojezdová vzdálenost do Plzně 40 km cca 40 minut jízdy. V Nové Vsi je skvělé sportovní vyžití, před domem najdete nově vybudovaný cyklo ovál, cykloturistika, turistika atd. V okolí krásná příroda, rozsáhlé lesy. Konstantinovy Lázně nabízí lázeňskou pohodu, město přiipravuje v sezóně mnoho zajímavých akcí pro své návštěvníky. <a href="https://www.eurobydleni.cz/byty/2_kk/plzen/obec-plzen/prodej/"><strong>Prodej bytu 2+kk Plzeň</strong></a>
Rodinný dům (vila) Konstantinovy Lázně, Sluneční ulice
Nabízíme Vám ke koupi jednopatrový, podsklepený rodinný dům (vilu) s podkrovím, který se nachází v západní, okrajové části lázeňské obce. Dům…
Prodej rodinného domu, 250 m2, Konstantinovy Lázně
Na prodej vícegenerační rodinný dům v Konstantinových Lázních. Má 3 nadzemní podlaží, obytné podkroví a částečnečně podsklepen. Užitná plocha domu…
Prodej rodinného domu Konstantinovy Lázně na Eurobydleni.cz