Makléř: DiS. Rojková Iveta
Telefon: 604 942 ...
E-mail: rojkova ...
Zobrazit celý kontaktTelefon: 604 942 357
E-mail: rojkova@realitymidals.cz
Nemovitost nabízí
MID.ALS s.r.o.
Míru 231, 337 01 Rokycany
Zobrazit kontakt na RK
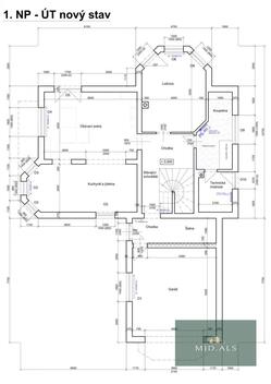
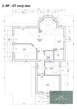
Prodej naprosto luxusní nemovitosti v jedné z nejlepších lokalit obce Rokycany, na okraji města v ulici K Potoku, v klidu, avšak stále velice blízko městskému ruchu a veškeré občanské vybavenosti. Tento rodinný dům, se zastavěnou plochou 166 m2, se pyšní dvěma nadzemními podlažími, z nichž v každém je možnost mít vybudovanou vlastní bytovou jednotu, přízemí 2kk a patro 3kk. Ale samozřejmě to není nutností. Druhá možnost, je využívat horního patra jako samostatných pokojů, tak jak je nyní, a v tuto chvíli je dům o dispozici 5kk, případně ještě navíc upravit místnosti a je z toho 6kk, variabilitě se meze nekladou. Celá nemovitost prošla absolutní stavební rekonstrukcí všech rozvodů, místností, každé patro má svoji koupelnu - s vanou, sprchovým koutem i wc. V přízemí se navíc nachází garáž pro dva vozy s dálkově ovládanými vjezdovými vraty. Na zahradě o výměře 802 m2 najdeme krásný bazén 8m x 4m - s orientací na západ, větší zahradní domek, kde jsou nové technologie k bazénu a ještě mnoho prostoru pro uskladnění zahradního i jiného náčiní. K bazénu náleží sezónní rolovací plachta, a zimní nafukovací kryt na bazén. Zahrada je zavedená a upravená, udržovaná, s několika okrasnými stromy, které poskytují naprosté soukromí. Dům je samozřejmě zateplený, odizolovaný, vše je naprosto nové. Opravdovým skvostem je kuchyně, která je kompletně vybavena spotřebiči, výklenek je připraven pro umístění jídelního stolu a zbylý prostor bude sloužit jako obývací pokoj. Z něj se vychází na terasu a k bazénu. V této místnosti je také příprava na krbová kamna. Do patra vystoupáme po schodech obložených dřevěnými prkny, v celém přízemí jsou krásné parkety, v patře kvalitní vinyl, koupelny pokryty dlažbou. V horním patře se ze všech pokojů přímo vchází na balkony. Topení zajišťuje nový plynový kotel, ohřev teplé vody elektrický bojler. Energetická náročnost ukazuje třídu D. Voda je do domu přivedena z obecního řádu, odpady svedeny do kanalizace. Nemovitost je poslední v zastavěné ulici, za domem je již zelená plocha, která bude dle Územního Plánu města ponechána jako alej, kousek dále je Holoubkovský potok. V případě zájmu pošlu více fotografií a video vizualizace části přízemí - kuchyně s obývacím pokojem a jídelnou. Stejně tak máme možnost spolupracovat s designérkou, která Vám navrhne interiér doslova na míru. Úžasné místo pro rodinu, doporučuji prohlídku, která je nezbytná pro posouzení toho správného místa k žití a také k jednání o ceně. Ráda Vás nemovitostí provedu. Více info u makléře dané nemovitosti. <a href="https://www.eurobydleni.cz/byty/1_1/plzen/obec-plzen/pronajem/"><strong>Pronájem bytu 1+1 Plzeň</strong></a>
Terasy Rokycany moderní bydlení v přírodě, s benefity města
Terasy Rokycany moderní bydlení v přírodě, s benefity města. Aktuálně: nemovitosti č. 4 a č. 5 jsou již prodané nebo rezervované. Představujeme…
Prodej RD 3+1, garáž
Představujeme Vám na prodej rodinný dům v prestižní lokalitě v Rokycanech na Plzeňském Předměstí, který se nachází v klidné zástavbě rodinných domů.…
Prodej rodinného domu Rokycany na Eurobydleni.cz