Makléř: Martina Dlouhá
Telefon: 606 633 ...
E-mail: dlouha@ ...
Zobrazit celý kontaktTelefon: 606 633 941
E-mail: dlouha@realitari.cz
Nemovitost nabízí
Realitáři Plzeň SE
Náměstí Republiky 202/28, 301 00 Plzeň
Zobrazit kontakt na RK373 036 333
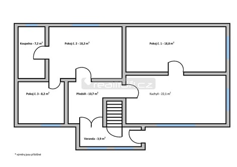
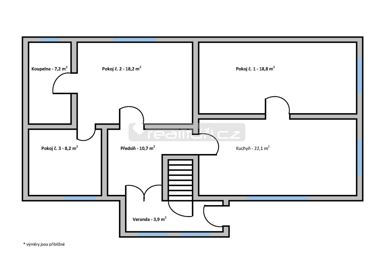
Hledáte místo, kde si odpočinete od shonu města, užijete si klid venkovského života a přitom budete mít vše potřebné na dosah? Pak je tahle chalupa v obci Chlumy ideálním řešením právě pro Vás! Domek, situovaný na mírném návrší s orientací na jih a jihozápad, Vám nabídne nejen krásný výhled do okolí, ale i dostatek světla po celý den. Svoji atmosféru si zachoval díky původním prvkům, jako jsou kachlová kamna v kuchyni i v jednom z pokojů, dřevěné podlahy či prostorná půda s možností rozšíření obytné plochy. Domek je z větší části v původním stavu, nutno počítat s rekonstrukcí. Co Vám chalupa nabídne? ✔ Velká kuchyně s tradičními kachlovými kamny a plotnou na vaření - ideální pro milovníky venkovské atmosféry. ✔ Tři prostorné pokoje, z nichž jeden má také kachlová kamna s plotnou. ✔ Vybavenost sítí - Elektřina 220/380 V (ve větší části již předělána), voda z vlastní studny a odpady napojené na obecní kanalizaci. ✔ Příprava na koupelnu a WC - instalace je hotová, chybí jen obklady a sanitární vybavení (WC již k dispozici). ✔ Tradiční podlahy - kombinace dřeva a dlažby dodává domu rustikální ráz. ✔ Menší sklípek - ideální pro uchování potravin, vína či domácích produktů. ✔ Prostorná půda - s možností přestavby na útulné podkrovní bydlení. ✔ Hospodářské zázemí - Velká stodola s chlívky poskytuje dostatek prostoru pro dílnu, skladování nebo drobné chovatelské či pěstitelské aktivity. ✔ Pozemek o výměře 872 m2 - část pozemku je zastavěný a před domem je zatravněný dvorek a za domem další travnatá část s velkým ořešákem . Místo, které si zamilujete Chalupa se nachází v klidné části vesnice Chlumy, kde na Vás dýchne pohoda venkovského života. Okolí nabízí nádhernou přírodu ideální pro procházky, cykloturistiku či houbaření. Přitom se však nemusíte vzdát pohodlí - město Nepomuk s veškerou občanskou vybaveností je jen 10 minut jízdy autem.
Prodej, Chata, chalupa, Ždírec
Ve výhradním zastoupení Vám nabízíme jedinečnou nabídku prodeje chaty o celkové zastavěné ploše 30m2 na vlastním pozemku o celkové výměře 881m2.…
Prodej chaty, 37 m2, Předenice
Nabízím k prodeji chatu k rekonstrukci v obci Předenice (Plzeň-jih), která se nachází na krásném a prostorném pozemku o velikosti 1.178 m2.…